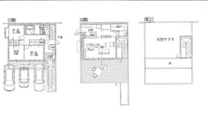
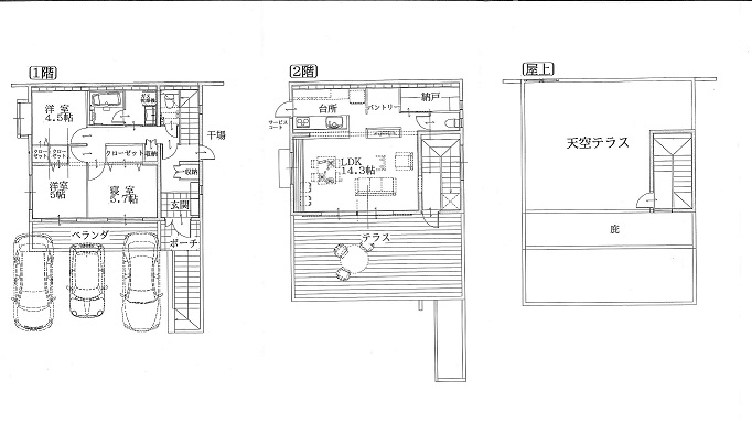
中城村新垣 収益物件【一戸建て】 【全5棟】北中城インター近く!米軍賃貸可能です! 築7年のRC造り3階建て☆彡 価格 4,227万円 カテゴリー 収益戸建 間取り 3LDK 所在地 沖縄県中頭郡中城村1344 中城村新垣 収益戸建て 交通 バス 徒歩6分 (営林署前バス停) 築年月 2018.10 新築/中古 面積 112.4㎡ バルコニー 向き 建物階数 地上3階 建物構造 RC 間取内容 洋室5畳1階 洋室5.7畳1階 洋室4.5畳1階 LDK14.8畳2階 駐車場 0円 空有 軽自動車なら3台駐車可能 取引態様 仲介 引渡/入居時期 現況 賃貸中 地目 宅地 用途地域 無指定 都市計画 市街化調整区域 地勢 建ぺい率 50% 容積率 100% 土地権利 所有権 接道状況 周辺環境 中城南小学校 中城中学校 設備・条件 地すべり危険個所 自社物 先物 ※物件掲載内容と現況に相違がある場合は現況を優先と致します。